Blythe House, Arddleen,
Property Features
- Four Bedroom Detached Home
- Secure Driveway & Ample Parking
- Village Location
- Double Garage
- Four Reception Rooms
- Spacious Property
- Enclosed Rear Garden
- A Great Substantial Family Home!
Property Summary
Full Details
Directions
From our office proceed up Willow street and turn left at the crossroads and follow the road around to the main traffic lights then turn right onto Morda Road and proceed through Morda Village and join the A483. Follow the road through the villages of Pant and Llanymynech and at the roundabout take the second exit onto the B4392 at the Horseshoe turn right
About Arddleen
Blythe House is set in the village of Arddleen which is conveniently situated just off the A483 between Welshpool and Oswestry. It benefits from a local village primary school and good links to secondary education. There is a village hall along with a public house with a beer garden. The Montgomeryshire canal runs through the village which you can walk from one end of the village to the other along the canal tow path. The village is also served by a public bus service.
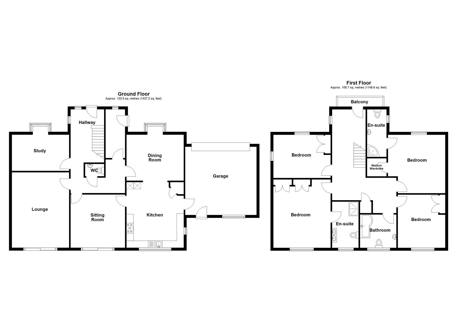
Accommodation Comprises
Hallway
Upon entering the property, the feeling of space offered by Blythe House begins with a window to the front, a window to the side and stairs leading off to first floor the spacious hallway has a tiled floor, understairs cupboard, spotlighting, a coved ceiling and two radiators.
Study 4.02 x 2.48m (13'2" x 8'1")
The useful study has a square bay window to the front, a radiator, a coved ceiling and spotlights.
Lounge 4.00 x 5.34m (13'1" x 17'6")
The large lounge has patio doors to the rear overlooking the garden, a radiator, wooden floor, a stone feature fireplace and hearth with electric stove inset.
Cloaks
The cloakroom has a w/c, a wash hand basin on a vanity unit with mixer tap over. It benefits from a tiled floor, a radiator and an extractor fan.
Second Hallway
The second hallway has window to front, a part glazed door to the front, tiled floor, a radiator and plumbing for a washing machine.
Dining Room 4.12 x 3.39m (13'6" x 11'1")
The dining room has a square bay window to the front, a radiator, wall lights, coved ceiling, a tiled floor and it opens up into the Kitchen making it a great useable family space.
Kitchen 3.98 x 4.62m (13'0" x 15'1")
The heart of the home, there is a window to the rear and a window to the side letting in plenty of light. The kitchen is fitted with a generous range of wall and base units and includes a useful island unit with a breakfast bar. It has a Stoves range cooker, integrated Bosch dishwasher, integrated fridge/freezer and a single bowl sink with a mixer tap over. There is an a eye level combination oven and microwave, integrated bin, pantry cupboard, coved ceiling, spotlights, a TV point and a vertical radiator.
Additional Photo
Sitting Room 3.80 x 3.74m (12'5" x 12'3")
The sitting room feels really cosy and has a tiled floor, wood panelled walls, a radiator and doors leading onto the garden.
Landing
Again, the spacious feel continues with the landing which has a glazed door onto the balcony, window to the front, spotlights, coved ceiling, a radiator, A/C off with radiator, a loft hatch. There is a adequate space for a study desk in this bright space.
Bedroom One 4.82 x 4.04m (15'9" x 13'3")
All four bedrooms are doubles with plenty of space. Bedroom one has a window to the rear, handy built-in double wardrobes providing plenty of storage and a radiator.
Additional Photo
Ensuite 1.17 x 3.29m (3'10" x 10'9")
The ensuite has a window to the rear, W/C, twin wash hand basins, shower cubicle with rainfall shower, de-mist mirrors, a featured heated towel rail and fully tiled walls.
Bedroom Two 4.05 x 4.17m (13'3" x 13'8")
The second bedroom also has dual aspect windows with a window to the front and to the side. There is a radiator, coved ceiling, spotlights and panelled walls. The room benefits from a built in walk in wardrobe providing plenty of storage space and a door leading to the ensuite.
Ensuite 1.76 x 3.24m (5'9" x 10'7")
The ensuite has a window to the side, heated towel rail, w/c, corner shower cubicle with Titan electric shower over, tiled floor, fully tiled walls and spot lighting.
Bedroom Three 3.66 x 3.26m (12'0" x 10'8")
The third bedroom has a window to the rear, a radiator and a double built in wardrobe providing storage.
Bedroom Four 4.07 x 3.01m (13'4" x 9'10")
Bedroom four is another generous double room. It has a window to the front and to the side, two double wardrobes providing plenty of storage and a radiator.
Bathroom 2.51 x 2.24m (8'2" x 7'4")
The family bathroom has a window to the rear, a P shaped bath with mains shower and shower head, W/C, wash hand basin on a vanity with a mixer tap over, fully tiled walls, a radiator and an extractor fan.
Garage 4.81 x 5.02m (15'9" x 16'5")
The garage has an up and over electric door, wall mounted Worcester boiler, Solar controls, base units with one and half ceramic sink bowl with mixer tap. There is plumbing for a washing machine, eaves storage space, a window and a door to the rear which leads to the rear garden.
To the Front
The property is accessed through double farm gates that lead onto the generous driveway which is gravelled and has plenty of parking and turning space for several cars. There is a covered porch to the front of the property with a quarry tiled floor.
To the rear
The rear garden feels very private and is hedged and fenced. There is a greenhouse, a shed which has power and lighting and is used by the current owners as a gym, a second shed providing useful storage. There is a generous lawned area, a brick patio which provides an ideal place for sitting out. There are shrubbed borders and gated side access.
Greenhouses
Additional Photo
Additional Photo
Additional Photo
Hours Of Business
Our office is open:
Monday to Friday: 9.00am to 5.00pm
Saturday: 9.00am to 2.00pm
Money Laundering Regulations
Once an offer is accepted, the successful purchaser will be required to produce adequate identification to prove the identity of all named buyers within the terms of the Money Laundering Regulations. Appropriate examples include: Photo Identification such as Passport/Photographic Driving Licence and proof of residential address such as a recent utility bill or bank statement.
Services
The agents have not tested the appliances listed in the particulars.
Tenure/Council Tax
We understand the property is freehold, although purchasers must make their own enquiries via their solicitor.
The Council tax is payable to Powys County Council and we believe the property to be in Band G.
To Book a Viewing
Viewing is strictly by appointment, please call our sales office on 01691 679631 to arrange.
To Make an Offer
Town and Country recommend that a prospective buyer/tenant follows the guidance of the Property Ombudsman and undertakes a physical viewing of the property and does not solely rely on virtual/video information when making their decision. Town and Country also advise it is best practice to view a property in person before making an offer.
To make an offer, please call our sales office on 01691 679631 and speak to a member of the sales team.
Town and Country Services
We offer a FREE valuation/market appraisal service from a trained representative with strong market knowledge and experience - We are a professional, independent company - We provide elegant, clear and concise brochures - Fully accompanied Viewings Available with regular viewing feedback - Full Colour Photography, including professional aerial photography when required - Full Colour Advertising - Eye catching For Sale Boards - Up-to-date buyer registration with a full property matching service - Sound Local Knowledge and Experience - State of the Art Technology - Motivated Professional Staff - All properties advertised on www.rightmove.co.uk, Zoopla, Onthemarket.com - VERY COMPETITIVE FEES FOR SELLING.
























