Chapel Lane, Knockin Heath, Oswestry
Property Features
- TO BE SOLD AT AUCTION
- Semi Detached Sandstone Cottage
- Various Outbuildings
- Set in 2.75 Acres
- Sought After Location
- Great Scope For Extension
- Extensive Parking
Property Summary
Full Details
Directions
From either Oswestry or Shrewsbury take the A5 to Nesscliffe and from the By Pass take the B4396 towards Knockin. After a short distance and just before the business park turn left towards Knockin Heath and Dovaston, Take the first turning signed Kinnerley and carry on through a cross roads into Knockin Heath. Proceed for approximately 1/2 a mile where the driveway to the property will be identified on the left hand side.
Accommodation Comprises
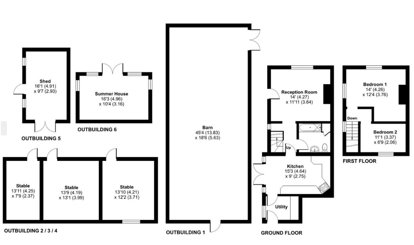
Lounge 4.27m x 3.64m (14'0" x 11'11" )
Window to the front of the property, secondary access door and open feature fireplace with tiled hearth and surround. Carpet flooring.
Bathroom
Comprising a bath with shower attachments above and tiled surround, low level flush WC, wash hand basin with mixer tap over. Vinyl flooring.
Hallway
Kitchen/ Dining Room 4.64m x 2.75m (15'2" x 9'0")
Comprising a range of floor and wall mounted cupboards with worktop over, stainless steel sink and drainer with mixer tap over, integrated oven with 5 ring gas hob over and extractor hood. Space and plumbing for dishwasher. Space for fridge freezer and Quarry tiled floor.
Additional Photo
Utility
Further cupboards with planned space for appliances beneath, rear access door.
To The First Floor
Bedroom One 4.26m x 3.76m (13'11" x 12'4")
Window to the front and carpeted flooring.
Bedroom Two 3.37m x 2.06m (11'0" x 6'9")
Window to the rear overlooking the grounds and carpet flooring.
To The Outside
Additional Photo
Parking
Garden
Outbuildings
Shed: 4.91m x 2.93m
Summer House: 4.96m x 3.16
Additional Photo
Additional Photo
The Grounds and Land
The property is set in approximately 2.75 acres of gardens, grounds and paddocks. The driveway leads onto the property and offers parking for several vehicles. The gardens are lawned and their is the possibility of planning to develop the cottage or to possibly build another dwelling. (Potential buyers are asked to make their own enquiries). A pathway leads along to further sandstone outbuildings and summerhouse and shed. A gate leads through to the rear of the property where there is a large metal framed outbuilding and workshop with two metal doors. There is a block built stable block and road access around the rear leading to a second gated entrance that leads back onto the main road. The land is well fenced with clear boundaries and level ground ideal for keeping horses and ponies.
Additional Photo
Additional Photo
Additional Photo
Additional Photo
The Stables
Stable 1: 4.25m x 2.37m
Stable 2: 4.19m x 3.99m
Stable 3: 4.21m x 3.71m
The Barn 13.83m x 5.63m (45'4" x 18'5" )
Planning Permissions
Outline planning permission was granted in 2022 for the erection of one dwelling, details of which can be viewed on the local authority planning portal, using the reference 22/05569/OUT
Now expired planning permission was granted in 2009 for the erection of a two storey side extension and single storey rear extension, details can be viewed on the local authority planning portal with the reference 09/01027/FUL.
Town and Country Services
We offer a FREE valuation/market appraisal service from a trained representative with strong market knowledge and experience - We are a professional, independent company - We provide elegant, clear and concise brochures - Fully accompanied Viewings Available with regular viewing feedback - Full Colour Photography, including professional aerial photography when required - Full Colour Advertising - Eye catching For Sale Boards - Up-to-date buyer registration with a full property matching service - Sound Local Knowledge and Experience - State of the Art Technology - Motivated Professional Staff - All properties advertised on www.rightmove.co.uk, Zoopla, Onthemarket.com - VERY COMPETITIVE FEES FOR SELLING.
To Make a Pre-Auction Offer
Offers must be submitted to us in writing and will only be considered if the lot has been viewed and the legal documentation inspected. Pre-auction bids are on the basis of an immediate exchange of auction contracts upon acceptance by the seller, with the buyer providing a full 5% deposit and the Buyer's Premium if applicable. Any offer will be assumed to be your best and final offer and we cannot guarantee that you will be invited to increase your bid in the event of an alternative, satisfactory offer being received prior to exchange.
To Book a Viewing
Viewing is strictly by appointment, please call our sales office on 01691 679631 to arrange.
Tenure/Council Tax
We understand the property is freehold although purchasers must make their own enquiries via their solicitor.
The Council tax is payable to Shropshire County Council and we believe the property to be in Band B.
Services
The agents have not tested the appliances listed in the particulars.
Money Laundering Regulations
Once an offer is accepted, the successful purchaser will be required to produce adequate identification to prove the identity of all named buyers within the terms of the Money Laundering Regulations. Appropriate examples include: Photo Identification such as Passport/Photographic Driving Licence and proof of residential address such as a recent utility bill or bank statement.
Hours Of Business
Our office is open:
Monday to Friday: 9.00am to 5.00pm
Saturday: 9.00am to 2.00pm
Guide Price and Reserve Price
Guide Prices and Reserve Prices
Each property is sold subject to a Reserve Price. The Reserve Price, which is agreed between the seller and the auctioneer just prior to the auction, would ordinarily be within + or - 10% of the guide Price. The guide Price is issued solely as a guide so that the buyer can consider whether or not to pursue their interest. Both the Guide Price and the Reserve Price can be subject to change up to and including the day of the auction. Further details can be downloaded from the auction website www.townandcountrypropertyauctions.co.uk.
Additional Information
We would like to point out that all measurements, floor plans and photographs are for guidance purposes only (photographs may be taken with a wide angled/zoom lens), and dimensions, shapes and precise locations may differ to those set out in these sales particulars which are approximate and intended for guidance purposes only.
These particulars, whilst believed to be accurate are set out as a general outline only for guidance and do not constitute any part of an offer or contract. Intending purchasers should not rely on them as statements of representation of fact, but most satisfy themselves by inspection or otherwise as to their accuracy. No person in this firm's employment has the authority to make or give any representation or warranty in respect of the property.






















