Ellesmere Road, St Martins
Property Features
- LOVINGLY RESTORED
- CHARACTER THROUGHOUT
- THREE DOUBLE BEDROOMS
- LARGE LOUNGE
- KITCHEN/BREAKFAST ROOM
- BATHROOM AND ENSUITE
- VILLAGE LOCATON
- OFF ROAD PARKING
- HOME OFFICE/STUDIO SPACE
Property Summary
Full Details
Directions
Leave Oswestry on the B5069 Gobowen Road, at the roundabout take the 1st exit and join the A5 heading towards Llangollen, at the first roundabout take the 4th exit onto the B5070 and continue along this road into St Martins. Take the 2nd exit on the roundabout onto the Ellesmere Road B5068 where the property can be seen on the right hand side.
The Property Renovation
This property has been lovingly and sympathetically restored by the current owners. Being taken right back to brick and fully insulated, with new electrics, plumbing and double glazed windows and doors, the vendors certainly have an eye for detail ensuring that every room has both space and character. There are high ceilings, deep windowsills and by leaving exposed, stone walling, wooden beams and steel supports, the architectural details add an industrial yet homely feel to the property. With three generous double bedrooms, this property makes a wonderful family home. The vendors also inform us that the property will soon also benefit from a new slate roof.
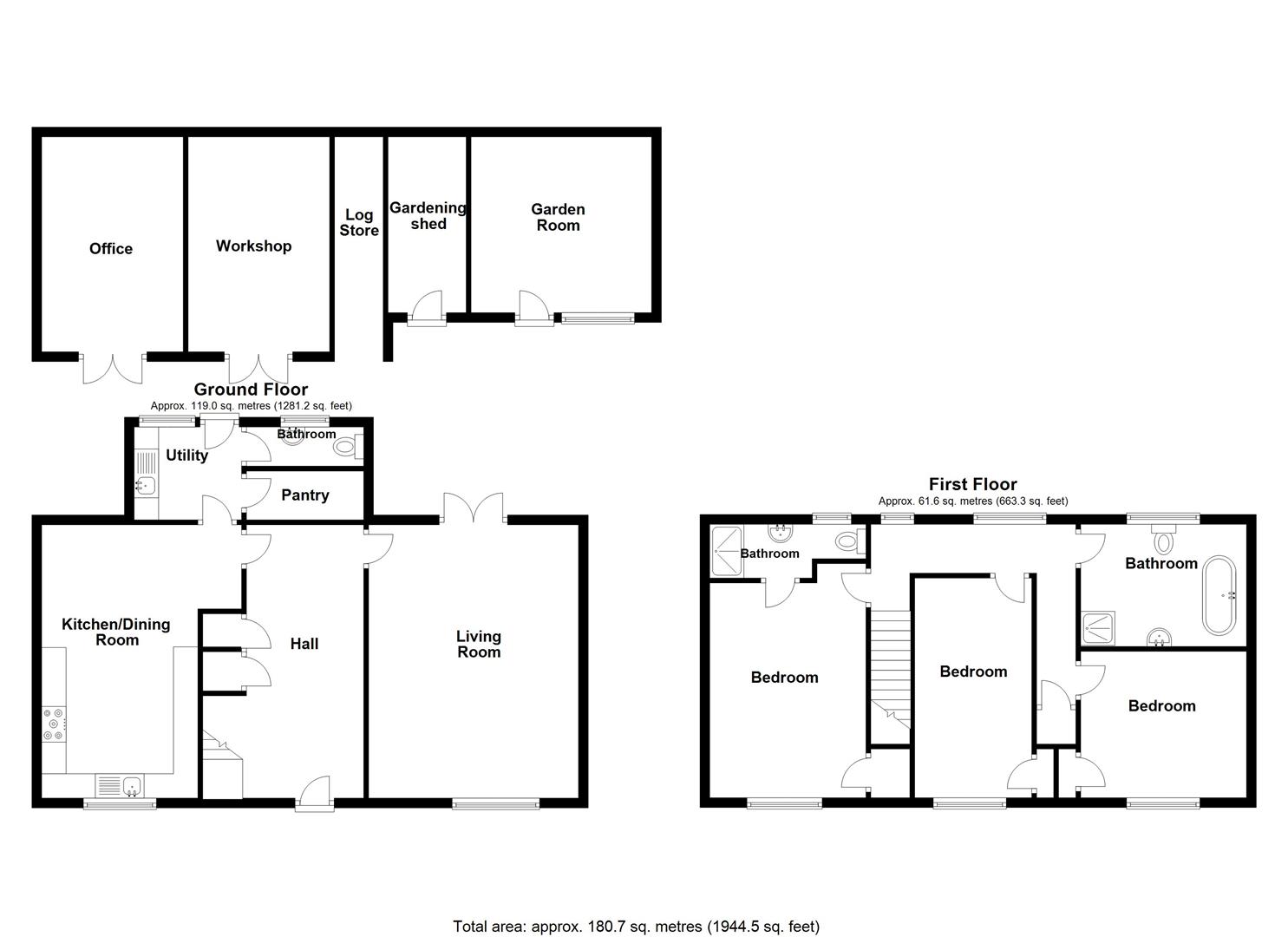
Accommodation Comprises:
Hallway 5.85m x 2.10m (19'2" x 6'10")
The large spacious, welcoming hallway has a door to the front with a glazed panel letting in plenty of light, the vendors have kept a nod to the previous use of the building retaining the original postbox. there is radiator, there is a door to a large understairs cupboard providing storage space, doors lead to the kitchen and lounge. The stairs lead off to the first floor.
Lounge 5.86m x 4.69m (19'2" x 15'4")
The bright lounge with dual aspect windows has a fantastic brick feature wall with a central log burner sitting on a thick slate hearth. There is an area for storing logs and oak shelving to either side. The room has Karndean wood effect flooring, a radiator and a tv point. French doors open out to the rear garden. There are several exposed architectural features prominent throughout the property, in the lounge there is exposed woodwork and steel.
Lounge Additional Photograph
Kitchen and Breakfast Room 5.85m x 3.20m (19'2" x 10'5")
The Karndean flooring continues throughout the ground floor including the kitchen, there is a large window to the front. The grey fitted kitchen benefits from a range of base and wall units with contrasting worktops over. Black one and a half bowl sink with drainer and mixer tap, space for a large range cooker, extractor fan over, integral Bosch dishwasher, integral under counter fridge, wooden shelving and part tiled walls. The generous sized kitchen is large enough to accommodate a large dining table and chairs making it perfect for families. The property also benefits from a separate utility room and pantry.
Kitchen Additional Photograph
Utility Room 2.20m x 1.95m (7'2" x 6'4")
Leading off from the kitchen, the utility room has a window to the rear and a door leading out to the rear garden. Benefitting from a continuation of the kitchen units offering plenty of additional storage, an integral tall fridge freezer, single bowl sink with mixer tap, plumbing and space for a washing machine, part tiled walls and doors leading to the pantry cupboard and cloakroom.
Pantry
The useful pantry has shelving providing great additional kitchen space, it also has space for an under counter freezer.
Cloakroom
The cloakroom has a window to the rear, a W/C, wash hand basin and a heated towel rail. The central heating boiler is also housed in here.
Landing
The spacious feel of this property continues with a well-proportioned landing with two windows to the rear overlooking the garden and flooding this area with light. Doors lead off to the bedrooms and family bathroom. There is also a door to the airing cupboard which has shelves for storage of towels and linen. The loft hatch with pull down stairs provides access to the roof space which is around 75% boarded for storage.
Principal bedroom 4.45m x 3.20m (14'7" x 10'5")
The generous main bedroom has a large window to the front, a radiator, a door to the storage cupboard/wardrobe which has shelving and rails for hanging. A door leads to the ensuite shower room.
Ensuite Shower Room 2.95m x 1.20m (9'8" x 3'11")
The ensuite shower room, has a large walk in shower cubicle, extractor fan, wash hand basin with a mixer tap on a vanity unit, W/C, heated towel rail, shaver point, oak shelving, spotlighting and Karndean wood effect flooring.
Bedroom Two 4.52m x 2.65m (14'9" x 8'8")
Another good sized double room, bedroom two has a window to the front and a Velux roof window and a radiator. There is a door to a storage cupboard/wardrobe which has shelving and a rail for hanging. There is an additional high cupboard in this room for additional storage.
Family Bathroom 3.55m x 2.68m (11'7" x 8'9")
The large family bathroom is full of character with a fantastic free-standing bath with mixer tap, large walk-in shower cubicle, wash hand basin, W/C, heated towel rail, shaver point, spotlighting, Karndean wood effect flooring and a window to the rear.
Bedroom Three 3.39m x 3.03m (11'1" x 9'11")
The third bedroom, which can again accommodate a double bed has a window to the front and a Velux roof window. There is a radiator, a door leads to a storage cupboard/wardrobe which has shelving and a rail for hanging.
To the Front of the Property
The property benefits from a block paved parking area for two vehicles which is fenced to the side. A gate leads into the rear garden. A walled area runs along the front of the property and a wrought iron gate leads to the front door. The front is paved with Indian stone slabs.
To the Rear of the Property
The rear garden is very family/pet friendly being enclosed by fencing all around. There are two large outbuildings which provide fantastic versatile spaces for multiple uses. Immediately to the rear, there is a large paved Indian stone patio which provides plenty of space for garden furniture to enjoy socializing and alfresco dining. There is an area laid to lawn, and borders planted with shrubs and trees. There is also an outside tap, outdoor electricity sockets and outdoor lighting.
Rear Garden Additional Photograph
Outbuilding
The first of the outbuildings provides two useful rooms which could be used for a number of uses. This is of brick/block construction with wood cladding and is fully insulated. Room one, a versatile space, is currently used as a sewing room and measures 2.90m x 3.65m. It has double glazed French doors into the garden, it also has the benefit of power and lighting and is fitted with Karndean wood effect flooring. Room two, another versatile space is used by the vendors as a workshop and measures 2.90m x 3.65m.
Sewing Room Photograph
Home Office/Studio 3.80m x 3.53m (12'5" x 11'6")
The second outbuilding is of wood frame construction and is currently used as a home office. It has a window and a door to the front and has the benefit of power and lighting. Attached to this building is a secure area used for the storage of garden equipment, it is fitted with a workbench and shelving. There is also a separate log store.
Home Office Additional Photograph
Parking



















