Meifod
Property Features
- Beautiful Period Family Home
- Four Bedrooms
- Large Gardens
- Many Original Features and History
- Driveway Parking and Outbuildings
- Pretty Village Location
- Spacious Accommodation
Property Summary
Full Details
Directions
From Oswestry join the A483 travelling towards Welshpool. At the Llynclys crossroads turn right by the White Lion public house onto the A495. Continue along this road and turn left towards Llansantffraid, remaining on the A495. Proceed along, passing through Llansantffraid, until reaching Meifod. On entering the village take the turning signposted for the school and the property will be found on the left hand side.
Property Overview
The property has undergone a full scheme of renovation and updating by the present owners to create a beautiful family home whilst being sympathetic to the original character and history of the home. The property benefits from an air source heat pump along with solar PV making it a really economical property to run.
Accommodation Comprises
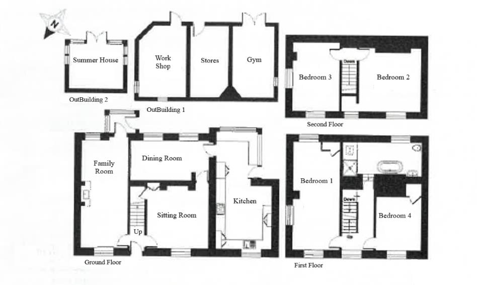
Hallway
The hallway has a part glazed door to the front, tiled floor, stairs leading off to the first floor accommodation with stripped treads and fitted carpet runner with brass trim. Doors lead through to the lounge and the sitting room.
Family Room 6.93m x 3.05m (22'8" x 10'0")
The family room is a good size yet has a real cozy feeling having a sash style window to the front, a window to the side and a window to the rear. There is a focal multi fuel stove inset with a granite hearth and exposed brick surround, two radiators, wall lighting and coved ceiling. There is also a part glazed door leading to the rear porch.
Additional Photo
Additional Photo
Additional Photo
Rear Porch
The rear porch has a quarry tiled floor, a window to the rear and side and a part glazed door to the side.
Sitting Room 4.14m x 3.91m (13'6" x 12'9")
The sitting room is another lovely reception room having a sash style window to the front, feature stone fireplace with an oak beam over, oak flooring, original beamed ceiling, under stairs cupboard off and a radiator. A door leads through to the dining room.
Additional Photo
Dining Room 4.87m x 2.46m (15'11" x 8'0")
The dining room is a great space to entertain as it is located just off the kitchen. It has two windows to the rear, oak flooring and a beamed ceiling.
Kitchen 7.71m x 3.64m (25'3" x 11'11")
The kitchen has been recently remodelled to create a wonderful area to cook and entertain. Having an extensive range of modern wall and base units with granite worktops over, display cabinets, wine rack, inset ceramic sink with mixer tap, space for a range cooker with a extractor canopy and space for a fridge/freezer. There is a window to the front and windows to the rear overlooking the garden, tiled floor, integrated dishwasher and integrated washing machine, built in cupboard off providing good storage, beamed ceiling, an extractor fan, a radiator, loft hatch and a stable door to the side leading out to the gardens.
Additional Photo
Additional Photo
Additional Photo
Additional Photo
Additional Photo
Stable Door
First Floor Landing
The first floor landing has a sash window to the front, stairs off to the second floor with the original handrail and banisters and doors leading to the bathroom and bedrooms.
Additional Photo
Bedroom One 3.98m x 3.09m (13'0" x 10'1")
A good sized double bedroom full of charm having a window to the front and to the side, a window to the rear, two radiators and built in wardrobes.
Additional Photo
Additional Photo
Bedroom Four 3.45m x 2.90m (11'3" x 9'6")
The fourth bedroom is another double bedroom having a window to the front, beamed ceiling, a radiator and storage alcove.
Additional Photo
Additional Photo
Family Bathroom
The stunning family bathroom has a newly fitted roll top bath with central mixer tap and shower, w/c, wash hand basin and a walk in shower with mains shower. There is a window to the rear, oak floor, heated towel rail, tiled walls and a double glazed roof light.
Additional Photo
Second Floor Landing
The second floor landing has doors leading to the both bedrooms.
Bedroom Two 5.30m x 4.09m (17'4" x 13'5")
The second bedroom is a great sized double room having a cupboard off with a water tank, a radiator and a window to the front.
Additional Photo
Bedroom Three 4.57m x 3.09m (14'11" x 10'1")
The third double bedroom has a window to the front and a window to the side. There is a beamed ceiling and eaves access to a storage area.
Additional Photo
Location
To the Front
There is a five bar farm gate to the side of the property that gives access to the driveway providing parking for several vehicles. To the other side there is pedestrian gate that leads to the garden. There is a strip of lawn running along the front with lovely creepers and planting around the front door.
To the Rear
To the rear and side of the property there is a generous sized garden that backs onto open fields giving a real feel of being in the country. There are extensive lawns along with well stocked flower beds. A purpose built Summerhouse provides a place to entertain and relax with a patio area leading onto the lawns. The garden also has mature fruit trees including apples and damsons. A further area to the left of the outbuildings is lawned with mature planting and hedged boundaries.
Additional Photo
Additional Photo
Additional Photo
Additional Photo
Workshop/Gym
The property also has a brick built workshop, store and gym to the rear. The workshop measures 4.60m x 3.09m and has a concrete floor and a door to the front. The store room measures 4.55m x 2.49m and has a door to the front. The gym has double doors to the front with power and lighting provided. There is also a purpose built dog run with hardstanding to the rear of the building.
Summerhouse
Additional Photo
Town and Country Services
We offer a FREE valuation/market appraisal service from a trained representative with strong market knowledge and experience - We are a professional, independent company - We provide elegant, clear and concise brochures - Fully accompanied Viewings Available with regular viewing feedback - Full Colour Photography, including professional aerial photography when required - Full Colour Advertising - Eye catching For Sale Boards - Up-to-date buyer registration with a full property matching service - Sound Local Knowledge and Experience - State of the Art Technology - Motivated Professional Staff - All properties advertised on www.rightmove.co.uk, Zoopla, Onthemarket.com - VERY COMPETITIVE FEES FOR SELLING.
To Make an Offer
Town and Country recommend that a prospective buyer/tenant follows the guidance of the Property Ombudsman and undertakes a physical viewing of the property and does not solely rely on virtual/video information when making their decision. Town and Country also advise it is best practice to view a property in person before making an offer.
To make an offer, please call our sales office on 01691 679631 and speak to a member of the sales team.
To Book a Viewing
Viewing is strictly by appointment, please call our sales office on 01691 679631 to arrange.
Tenure/Council Tax
We understand the property is freehold, although purchasers must make their own enquiries via their solicitor.
The Council tax is payable to Powys County Council and we believe the property to be in Band E.
Services
The agents have not tested the appliances listed in the particulars.
Money Laundering Regulations
Once an offer is accepted, the successful purchaser will be required to produce adequate identification to prove the identity of all named buyers within the terms of the Money Laundering Regulations. Appropriate examples include: Photo Identification such as Passport/Photographic Driving Licence and proof of residential address such as a recent utility bill or bank statement.
Hours Of Business
Our office is open:
Monday to Friday: 9.00am to 5.00pm
Saturday: 9.00am to 2.00pm
Additional Information
We would like to point out that all measurements, floor plans and photographs are for guidance purposes only (photographs may be taken with a wide angled/zoom lens), and dimensions, shapes and precise locations may differ to those set out in these sales particulars which are approximate and intended for guidance purposes only.
These particulars, whilst believed to be accurate are set out as a general outline only for guidance and do not constitute any part of an offer or contract. Intending purchasers should not rely on them as statements of representation of fact, but most satisfy themselves by inspection or otherwise as to their accuracy. No person in this firm's employment has the authority to make or give any representation or warranty in respect of the property.









































