Moelfre, Oswestry
Property Features
- Former Rectory
- Characterful Accommodation
- Four/Five Bedrooms
- Annexe Potential
- Generous Gardens
- 1/3 Acre Paddock
- Two Storey Stone Barn
- Requiring Improvement
- Huge Potential
- Quiet, Peaceful Location
Property Summary
Full Details
Directions
From our Oswestry office proceed up Willow Street and follow this road out of town towards the Old Racecourse. Continue on this road for approximately 6 miles passing through the village of Rhydycroesau and towards the village of Llansilin. Take a right turning signposted towards Llanarmon and Llangadwaladr. Follow this road along for approximately a mile until reaching a cross roads. Take the left hand turn signposted Llangadwaladr. Follow this lane for approximately a mile where the property will be found on the left hand side next to the church. What3words; ///homecare.costs.sock
Location
The property sits next to the beautiful church that is steeped in history.
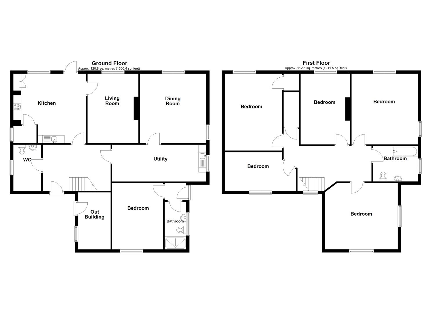
Accommodation Comprises:
Hall 4.45 x 2.96m (14'7" x 9'8")
With a door to the rear, the spacious hallway sets the tone for this entire property as it offers a great deal of space. It has a radiator, stairs to the first floor, doors leading to the cloakroom, kitchen and through to the annexe accommodation.
Cloakroom
With a window to the side, W/C, wash hand basin and a radiator.
Kitchen/Dining Room 4.54m x 4.17m (14'10" x 13'8")
The heart of the home, this large kitchen has a door and window to the front overlooking the garden and views beyond, it is fitted with a range of base and wall units with worktops over, quarry tiled floor, part tiled walls, stainless steel double bowl sink with drainer and mixer tap over, plumbing and space for washing machine, built in linen cupboard, a door leads to the pantry which has a window to the side and offers additional storage.
Additional Photo
Sitting Room 3.31m x 4.66m (10'10" x 15'3")
With a sash window to the front overlooking the garden, stone fireplace with a log burner inset on a slate hearth and wall lights.
Dining Room 4.95m x 4.25m (16'2" x 13'11")
A generous room with a window to the side and to the rear, a radiator and a tiled fireplace with an open fire.
Second Kitchen 6.17m x 2.41m (20'2" x 7'10")
Providing great potential for annexe accommodation, the property has a second kitchen which has a window to the side, quarry tiled floor, a radiator, built in cupboard, part panelled walls, and a door to the rear hall.
Rear Hall
The rear hall has a door to the side and a door leading to the ground floor shower room and bedroom.
Shower Room
With a window to the side, double walk in shower with two shower heads, W/C, wash hand basin, heated towel rail, part tiled walls and vinyl flooring.
Ground Floor Bedroom 4.29m x 3.33m (14'0" x 10'11")
With a window to the front, a radiator, exposed floorboards and a picture rail.
Landing
Stairs lead off from the main hallway to the landing which is very light and spacious. There is a window to the rear, a Velux window adds further light and there is a door to a large storage cupboard.
Bedroom Five 4.25m x 4.71m (13'11" x 15'5" )
A large double room with a sash window to the rear, exposed floorboards, tiled fireplace and a radiator.
Bedroom One/Utility Room 4.56m x 2.53m (14'11" x 8'3" )
With a sink unit, a radiator, window to the rear and a door to the airing cupboard.
Bedroom Two 4.66m x 3.71m (15'3" x 12'2")
A generous double bedroom, with a sash window to the front, stone fireplace with cast iron fire basket, high ceilings and a built in cupboard.
Bedroom Three 3.33m x 4.64m (10'11" x 15'2")
A second large double bedroom having a sash window to the front, superb rural views, high ceilings and a radiator.
Bedroom Four 4.21m x 4.94m (13'9" x 16'2")
Another large double room with a window to the front and to the side with great views, high ceilings and a radiator.
Bathroom 2.34m x 2.86m (7'8" x 9'4")
With a window to the side, panelled bath with electric shower over, W/C, wash hand basin and part tiled walls.
Outhouse
Attached to the property is an outhouse, it houses the Worcester oil fired boiler and has a door and window to the side.
To The Outside
Gardens and Grounds
The property sits in a plot of around 1/3 of an acre and has an additional piece of land across the lane behind the barn which also measures around 1/3 of an acre. The property itself has generous gardens to the front, side and rear. There is adequate parking for multiple vehicles and beautiful scenic countryside views in all directions. The mature garden to the rear is mainly laid to lawn with a large paved patio, ideal for sitting out and taking in the views over the fields and hills at the rear. With a side garden planted with shrubs and a further lawned garden. The front is laid to lawn with a large gateway suitable for vehicles should additional parking be required and a pedestrian gate with pathway to the front door.
Additional Photo
Additional Photo
To The Rear
Aerial Views
Aerial Views
Two Storey Stone Barn 3.50 x 4.63m (11'5" x 15'2")
The barn provides potential for a number of uses subject to obtaining the necessary planning permission. It is currently used as an open fronted garage and store. There is parking for 3 to 4 cars at the side of the barn.
Parking
Paddock
The paddock to the rear measures approx. 1/3 of an acre it is well fenced with gated road access.
Additional Photo
Additional Photo
Town and Country Services
We offer a FREE valuation/market appraisal service from a trained representative with strong market knowledge and experience - We are a professional, independent company - We provide elegant, clear and concise brochures - Fully accompanied Viewings Available with regular viewing feedback - Full Colour Photography, including professional aerial photography when required - Full Colour Advertising - Eye catching For Sale Boards - Up-to-date buyer registration with a full property matching service - Sound Local Knowledge and Experience - State of the Art Technology - Motivated Professional Staff - All properties advertised on www.rightmove.co.uk, Zoopla, Onthemarket.com - VERY COMPETITIVE FEES FOR SELLING.
To Make an Offer
Town and Country recommend that a prospective buyer/tenant follows the guidance of the Property Ombudsman and undertakes a physical viewing of the property and does not solely rely on virtual/video information when making their decision. Town and Country also advise it is best practice to view a property in person before making an offer.
To make an offer, please call our sales office on 01691 679631 and speak to a member of the sales team.
To Book a Viewing
Viewing is strictly by appointment, please call our sales office on 01691 679631 to arrange.
Tenure/Council Tax
We understand the property is freehold, although purchasers must make their own enquiries via their solicitor.
The Council tax is payable to Powys County Council and we believe the property to be in Band F.
Services
The agents have not tested the appliances listed in the particulars.
Money Laundering Regulations
Once an offer is accepted, the successful purchaser will be required to produce adequate identification to prove the identity of all named buyers within the terms of the Money Laundering Regulations. Appropriate examples include: Photo Identification such as Passport/Photographic Driving Licence and proof of residential address such as a recent utility bill or bank statement.
Hours Of Business
Our office is open:
Monday to Friday: 9.00am to 5.00pm
Saturday: 9.00am to 2.00pm
Additional Information
We would like to point out that all measurements, floor plans and photographs are for guidance purposes only (photographs may be taken with a wide angled/zoom lens), and dimensions, shapes and precise locations may differ to those set out in these sales particulars which are approximate and intended for guidance purposes only.
These particulars, whilst believed to be accurate are set out as a general outline only for guidance and do not constitute any part of an offer or contract. Intending purchasers should not rely on them as statements of representation of fact, but most satisfy themselves by inspection or otherwise as to their accuracy. No person in this firm's employment has the authority to make or give any representation or warranty in respect of the property.




























