Pen Y Garnedd, Oswestry
Property Features
- Detached Country Cottage
- Set Within 17 Acres of land
- Two Double Bedroms
- Stunning Rural Location
- Far Reaching Views over Valley
- Possibility to Extend
- Full Of Original Character
- Double Garage and Driveway
Property Summary
Full Details
Directions
From our Oswestry office take the Morda road (B5069) out of the town and turn right joining the A483. Continue along the A483 until reaching the Llynclys cross roads by the White Lion Pub. Turn right heading for Llangedwyn and Bala, continue along this road passing through the villages of Llangedwyn and Pentrefelin. Before reaching the village of Llanrhaeadr Ym Mochnant take a left hand fork signposted Penybontfawr and Llanfyllin. Folow this road for approximately 1 mile passing through the hamlet of Pedairffordd. On reaching the T juction turn left and head towards Penygarnedd. On entering the hamlet take the turning up the hill adjacent to the church yard. Follow this lane up for approximately ½ a mile where the property will be seen on the left hand side.
Location
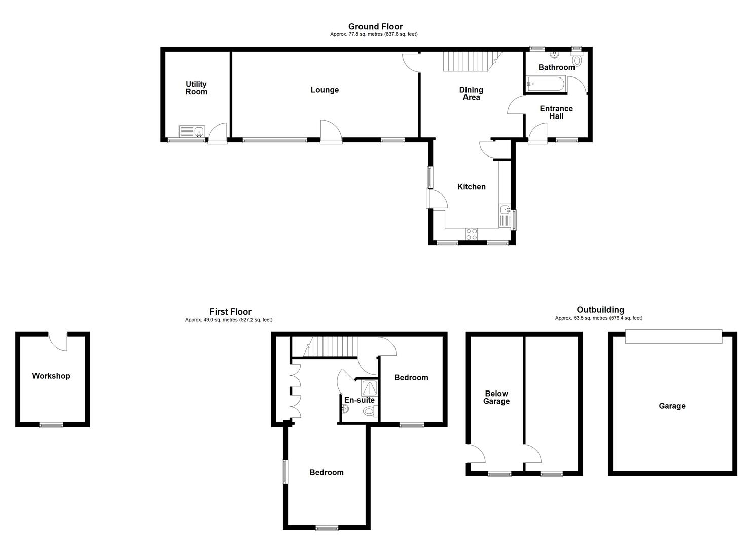
Accommodation Comprises:
The Hallway
The hallway has a slate flagged floor, glazed door to the front and a window to the front. With wall lights, beamed ceiling and exposed brickwork. Doors lead to the dining room and the bathroom.
Bathroom
The ground floor bathroom has two windows to the rear, panelled bath with mixer tap, shower head and a glass screen. A wash hand basin, w/c, heated towel rail, electric wall heater, part tiled and part panelled walls and shaver light.
Dining room 4.29m x 3.70m (14'0" x 12'1" )
The dining room has exposed stonework, stairs leading off to the first floor, beamed ceiling, storage heater and built in storage cupboards. The dining room opens out onto the kitchen making it a great space to entertain and cook. A door leads through to the lounge.
Kitchen/ Breakfast Room 4.71m x 3.48m (15'5" x 11'5")
The kitchen has two windows to the front overlooking the gardens and hills beyond , a window to the side, part glazed door to the side. With wall and base units, eye level Bosch electric oven, microwave/combi grill, Bosch ceramic hob, space for a dishwasher and fridge. A one and half sink bowl with mixer tap, part tiled walls, beamed ceiling, a chimney extractor fan, a pantry off with shelving and a storage heater.
Additional Photo
Additional Photo
Lounge 3.50m x 7.95m (11'5" x 26'0")
The spacious vaulted lounge a large full height window to the front and a second window to the front overlooking the garden and views, a glazed door to the front, storage heater, fitted shelving and storage, exposed stonework and a focal log burning stove on a slate hearth.
Additional Photo
Fireplace
Landing
The landing has doors leading to the two bedrooms and has exposed brickwork.
Bedroom One 7.37m x 3.50m (24'2" x 11'5")
Bedroom one is a great size and has a window to the front and a window to the side with great views, Velux window, slate window sills and a range of fitted shelving and wardrobes. A door leads through to the en suite.
Additional Photo
En-suite
The en-suite has a shower cubical with electric shower, w/c, wash hand basin, part tiled walls, heated towel rail and a extractor fan.
Bedroom Two 2.77m x 3.87m (9'1" x 12'8")
The second double bedroom has a window to the front with slate sill overlooking the gardens, exposed stonework and an A/C off with tank and built in cupboard.
To The Outside
Workshop/Utility 2.73m x 3.63m (8'11" x 11'10")
The workshop/utility room adjoins the main house and has a window to the front, sink unit and plumbing for appliances. A very versatile space that could easily be incorporated to create further accommodation for the cottage.
Top Room 3.66m x 2.70m (12'0" x 8'10")
There is also a further room above the utility having a door to the rear, window to the front, power and lighting. Another great space with lots of potential to create a room in the property.
Double Garage 5.03m x 5.89m (16'6" x 19'3")
The double garage has an electric roller door.
Workshop Below Garage 5.59m x 2.23m 5.59m x 2.2m (18'4" x 7'3" 18'4" x 7
The workshop/ store located underneath the garage is currently split into two areas and has two windows to the rear with power and lighting.
Gardens
At the front of the property is a gated gravelled driveway providing parking for several cars, a log store and access to the double garage. A gate leads through and down to the front door of the cottage. There is a large patio that runs across the front of the cottage creating a lovely place to take in the garden and the scenery. The extensive lawns wrap around the front of the home with a pathway running along the rear.
Additional Photo
Additional Photo
Additional Photo
Additional Photo
Paddocks
The property is set within paddocks and grounds extending to around 17 acres in total. Split into various paddocks that run along the front and the sides of the property with hedge and fence boundaries. There are gated access points to the higher paddocks.
Land Plan
Additional Photo
Additional Photo
Additional Photo
Additional Photo
Additional Photo
Additional Photo
Additional Information
We would like to point out that all measurements, floor plans and photographs are for guidance purposes only (photographs may be taken with a wide angled/zoom lens), and dimensions, shapes and precise locations may differ to those set out in these sales particulars which are approximate and intended for guidance purposes only.
These particulars, whilst believed to be accurate are set out as a general outline only for guidance and do not constitute any part of an offer or contract. Intending purchasers should not rely on them as statements of representation of fact, but most satisfy themselves by inspection or otherwise as to their accuracy. No person in this firm's employment has the authority to make or give any representation or warranty in respect of the property.
Hours Of Business
Our office is open:
Monday to Friday: 9.00am to 5.00pm
Saturday: 9.00am to 2.00pm
Money Laundering Regulations
Once an offer is accepted, the successful purchaser will be required to produce adequate identification to prove the identity of all named buyers within the terms of the Money Laundering Regulations. Appropriate examples include: Photo Identification such as Passport/Photographic Driving Licence and proof of residential address such as a recent utility bill or bank statement.
Tenure/Council Tax
We understand the property is freehold, although purchasers must make their own enquiries via their solicitor.
The Council tax is payable to Powys County Council and we believe the property to be in Band F.
To Book a Viewing
Viewing is strictly by appointment, please call our sales office on 01691 679631 to arrange.
To Make an Offer
Town and Country recommend that a prospective buyer/tenant follows the guidance of the Property Ombudsman and undertakes a physical viewing of the property and does not solely rely on virtual/video information when making their decision. Town and Country also advise it is best practice to view a property in person before making an offer.
To make an offer, please call our sales office on 01691 679631 and speak to a member of the sales team.
Town and Country Services
We offer a FREE valuation/market appraisal service from a trained representative with strong market knowledge and experience - We are a professional, independent company - We provide elegant, clear and concise brochures - Fully accompanied Viewings Available with regular viewing feedback - Full Colour Photography, including professional aerial photography when required - Full Colour Advertising - Eye catching For Sale Boards - Up-to-date buyer registration with a full property matching service - Sound Local Knowledge and Experience - State of the Art Technology - Motivated Professional Staff - All properties advertised on www.rightmove.co.uk, Zoopla, Onthemarket.com - VERY COMPETITIVE FEES FOR SELLING.
































