Rhydycroesau
Property Features
- NO ONWARD CHAIN!
- Four Bedroom Barn Conversion
- Stunning Rural Location
- Extensive Gardens & Grounds
- Open Plan Kitchen/Dining Room
- Oil Fired Central Heating
- Master Bedroom with Ensuite
- Countryside Views
Property Summary
Full Details
Directions
From Oswestry take the B4580 to Llansilin continue over the Racecourse following the road through Llawnt. On entering Rhydycroesau proceed through the hamlet heading towards Llansilin. The property will be found on the left hand side after approximately 1/2 a mile. The driveway is on the left that leads down to the house.
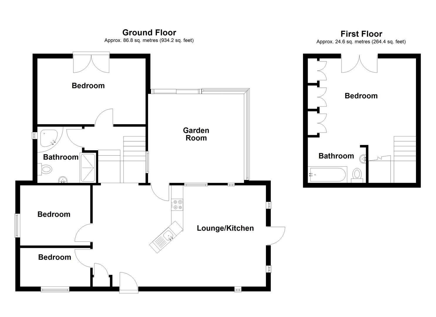
Accommodation Comprises;
Kitchen/Dining Room 7.42m x 4.27m (24'4" x 14'32" )
The good sized open plan kitchen/dining room has a vaulted ceiling with exposed beamed ceilings and exposed wooden flooring. The kitchen comprises a range of base units with contrasting work surfaces over, stainless steel sink and drainer with mixer tap and part tiled surround. There is an integrated AEG oven, four ring induction hob and space and plumbing for appliances. There is tile effect flooring to the kitchen area and wall and ceiling light fittings throughout. A part glazed door leads through to the lounge and steps lead down to the bedrooms and bathroom. Doors lead to the two bedrooms and a stable style door leads out to the parking area and gardens.
Additonal Photo
Additional Photo
Dining Area
The dining area has a feature cast iron log burner, double glazed french doors with panoramic countryside views and arrow slit style windows to the front and side. Wall lighting and wooden flooring.
Living Room 3.81m x 3.97m (12'5" x 13'0")
The good sized living room is bright and filled with light having double glazed patio doors and large panoramic windows with thin aluminium frames to maximise the stunning view and leads out to a decked patio area which enjoys far reaching countryside views of the valley, exposed stonework walling, wood effect flooring and a radiator.
Additional Photo
Bedroom Two 2.95m x 2.44m (9'8" x 8'79" )
The second bedroom has a window to the side, radiator and wooden flooring. Access to the roof space by hatch.
Bedroom Three 2.74m x 1.52m (9'78" x 5'49" )
The third bedroom/ study has a window to the front of the property, radiator and wood flooring.
Inner Hall
The inner hallway has an oak banister and stairs leading up to the first bedroom and steps leading down to the family bathroom and the fourth bedroom.
Bedroom One 4.62m x 3.66m (15'2" x 12'88")
The main, good sized bedroom has double glazed French doors to the side taking in the stunning views, radiator and oak flooring throughout, recess spotlights to the ceiling and wall lighting. There is a range of fitted storage cupboards and an opening leading through into the ensuite area.
Additional Photo
Ensuite 2.54m x 1.73m (8'4" x 5'08" )
The ensuite comprises a panel bath with central mixer tap and shower head attachment, wash hand basin with vanity unit below and mixer tap over, WC. Shaver point and light, heated towel rail and oak flooring.
Lower Ground Floor Level
With oak flooring and understairs cupboard for storage. Doors lead to the fourth bedroom and the family bathroom.
Bedroom Four 4.57m x 2.84m (15'19" x 9'4" )
This good sized bedroom has further double glazed French doors leading out to the gardens, arrow slit style windows on two elevations, telephone point and recess spotlights to the ceiling with a radiator and oak flooring.
Family Bathroom 2.44m x 2.36m (8'18" x 7'09" )
The well appointed family bathroom has a white bathroom suite comprising a corner panel bath with mixer tap and shower attachment, wash hand basin and WC. Double width shower cubicle with two shower head attachments, tiled walls and floor, shaver point and extractor fan. Heated towel rail and arrow slit style window.
Additional Photo
To The Outside
The property is accessed through a via a long sweeping driveway leading down to the property providing ample off road parking for several vehicles. There are extensive lawned gardens and grounds that wrap around the property with a fantastic decked area perfect for entertaining and enjoying the countryside valley views. There is also a useful dog kennel/large double shed located to the side of the driveway.
Additional Photo
Additional Photo
Additional Photo
Additional Photo
Additional Photo
Hours Of Business
Our office is open:
Monday to Friday: 9.00am to 5.00pm
Saturday: 9.00am to 2.00pm
Money Laundering Regulations
Once an offer is accepted, the successful purchaser will be required to produce adequate identification to prove the identity of all named buyers within the terms of the Money Laundering Regulations. Appropriate examples include: Photo Identification such as Passport/Photographic Driving Licence and proof of residential address such as a recent utility bill or bank statement.
Services
The agents have not tested the appliances listed in the particulars.
Tenure/Council Tax
We understand the property is freehold, although purchasers must make their own enquiries via their solicitor.
The Council tax is payable to Powys County Council and we believe the property to be in Band D.
To Book a Viewing
Viewing is strictly by appointment, please call our sales office on 01691 679631 to arrange.
To Make an Offer
Town and Country recommend that a prospective buyer/tenant follows the guidance of the Property Ombudsman and undertakes a physical viewing of the property and does not solely rely on virtual/video information when making their decision. Town and Country also advise it is best practice to view a property in person before making an offer.
To make an offer, please call our sales office on 01691 679631 and speak to a member of the sales team.
Town and Country Services
We offer a FREE valuation/market appraisal service from a trained representative with strong market knowledge and experience - We are a professional, independent company - We provide elegant, clear and concise brochures - Fully accompanied Viewings Available with regular viewing feedback - Full Colour Photography, including professional aerial photography when required - Full Colour Advertising - Eye catching For Sale Boards - Up-to-date buyer registration with a full property matching service - Sound Local Knowledge and Experience - State of the Art Technology - Motivated Professional Staff - All properties advertised on www.rightmove.co.uk, Zoopla, Onthemarket.com - VERY COMPETITIVE FEES FOR SELLING.



















